Overview
Bespoke design and build in sublime living spaces, Anassa is an embodiment of luxury. An architectural marvel positioned at the most enviable address of the city, this discerning choice of abode boasts of expansive carpet areas, stunning views stretching across the city skyline and stalwart living under high ceilings. From plush walkways to regal landscape, this gilded tower is inlaid with a dramatic pool, games room, private gym and spa.
Welcome to Six Star Living
Custom-made for an escapade into the blue, the Sky Lounge at 418ft. is built to upscale style and elegance. Among the many features that make this contemporary property an opulent experience, the most noteworthy one is the thoughtfully designed, Club Pegasi. Elite amenities coupled with every element has been carefully considered, the lavish estate is sure to captivate deluxe senses.
Pricing (Inclusive of GST & extra charges)
4BHK
Price on request
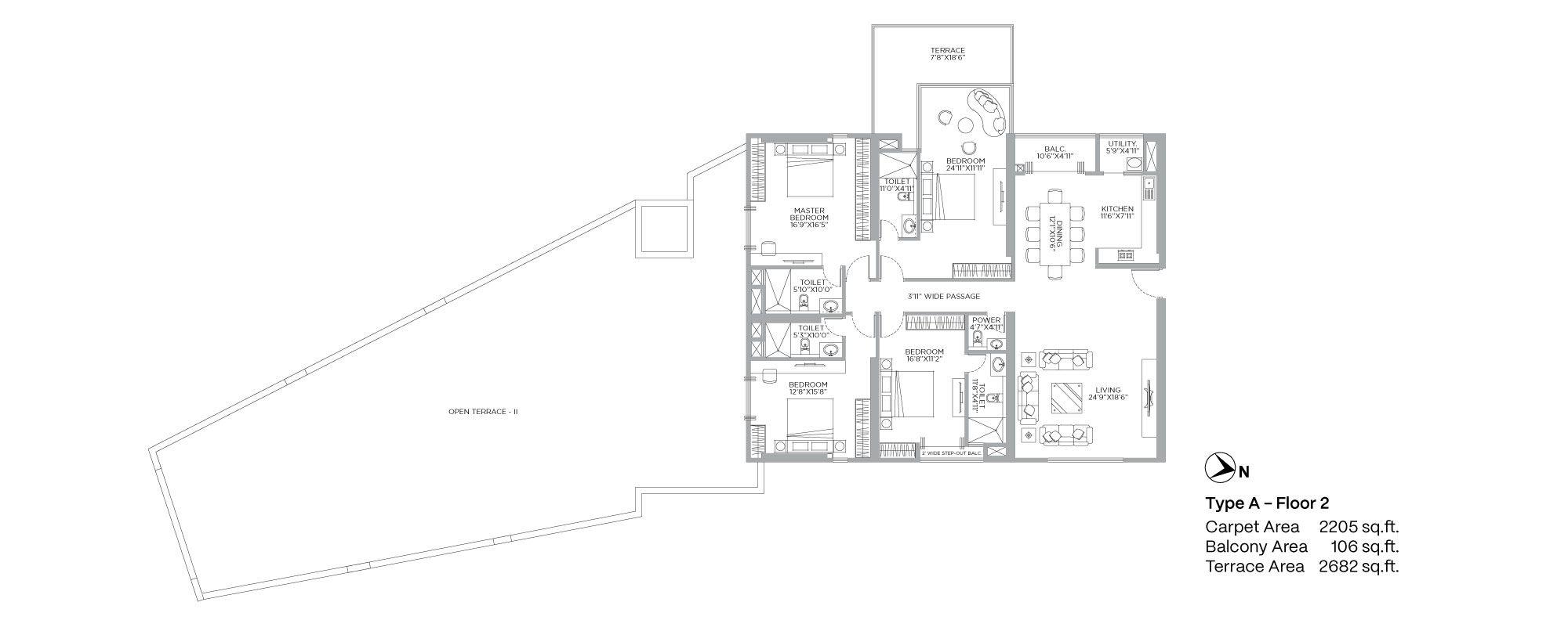
4BHK Terrace
Price on request
Gallery
Premium Project Images
Highlights
Premium Apartment Features
Site Plan
Know Your Home
Location
Beside JW Marriott, EM Bypass, Kolkata
Anassa
Beside JW Marriott, EM Bypass-
Healthcare
-
Education
-
Leisure
-
Commute

.png)