Overview
A mark of exquisite architecture and design, Emperador at the heart of the city, Chowringhee offers great connectivity and a majestic presence. Workspaces here have been conceived with a purpose - to cultivate a work culture of creativity, collaboration, and leadership.
Inspiring work spaces for true leaders.
Surrounded by eternal landmarks, famous administration houses, emerging social places and towering workspaces this well connected sustainable building with smart architecture is ready to let the business professionals experience high performance modern office spaces in the heart of Kolkata.
Emperador combines everything that makes it an exclusive business space. Intricate planning and thoughtfulness have seeped into every aspect of this majestic commercial building. It is an IGBC certified Green Building that comes with energy efficient façade design and imparts the privilege to enjoy the mesmerising view of Maidan & Victoria Memorial from select offices.
Pricing (Inclusive of GST & extra charges)
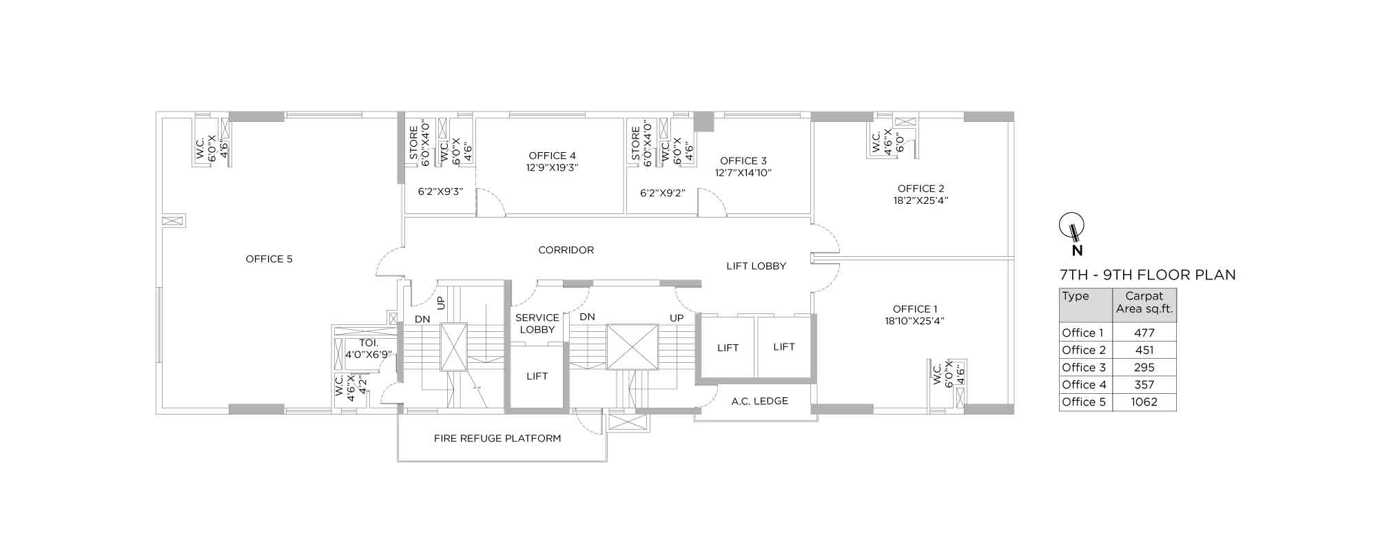
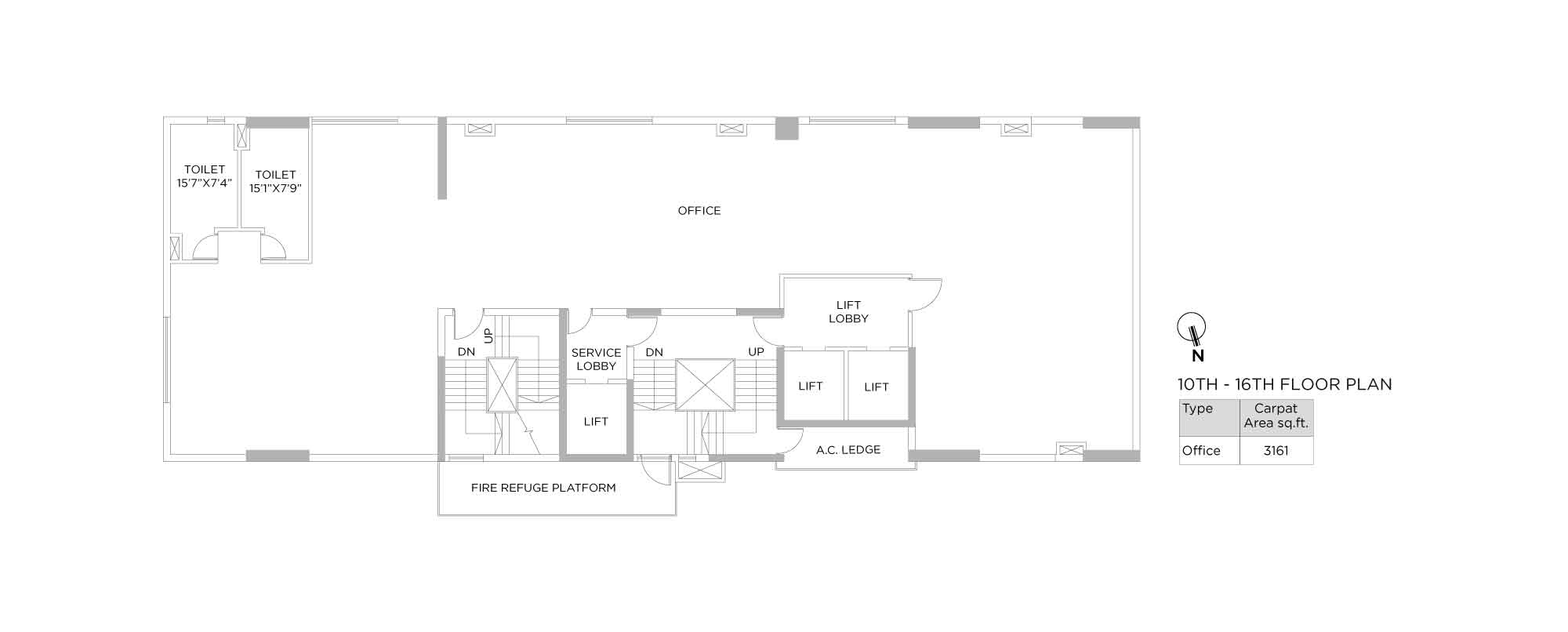
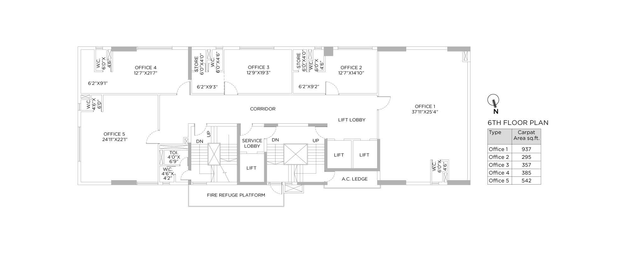
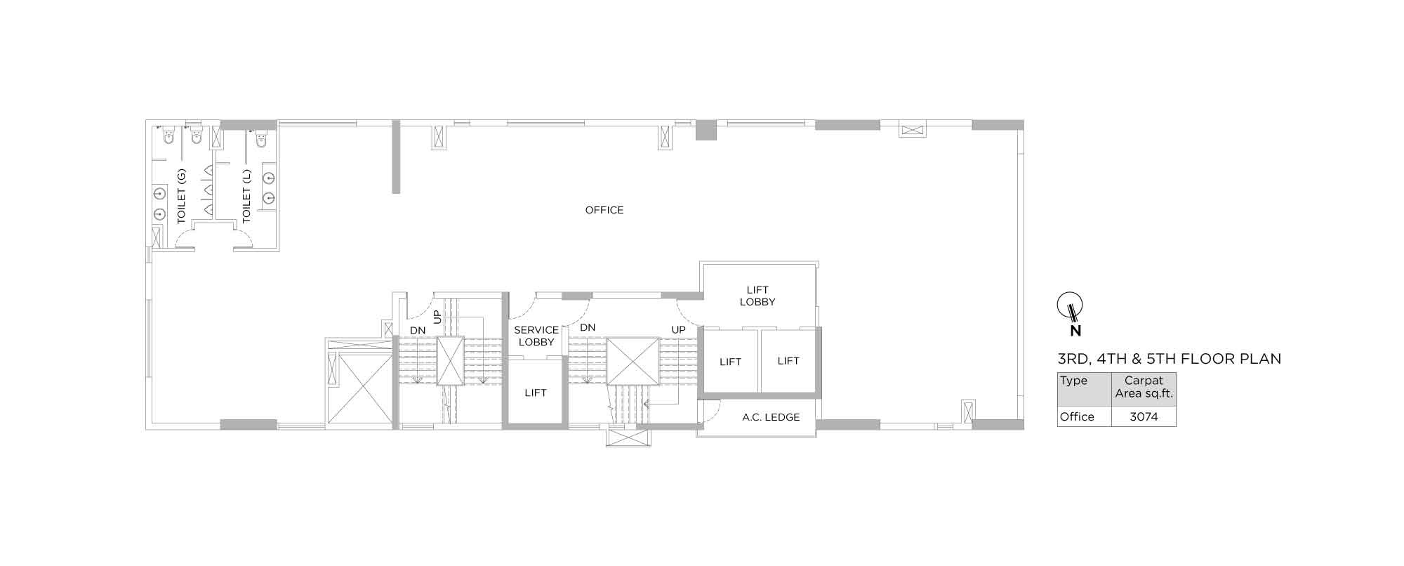
office spaces
Price on Request
Gallery
Site Plan
Location
Emperador
36C/1 Chowringhee Road-
Healthcare
-
Education
-
Leisure
-
Commute

.png)