Overview
A re-imagination of life and luxuries. The largest residential park in all of Alipore and New Alipore.
Kolkata’s first expanded living.
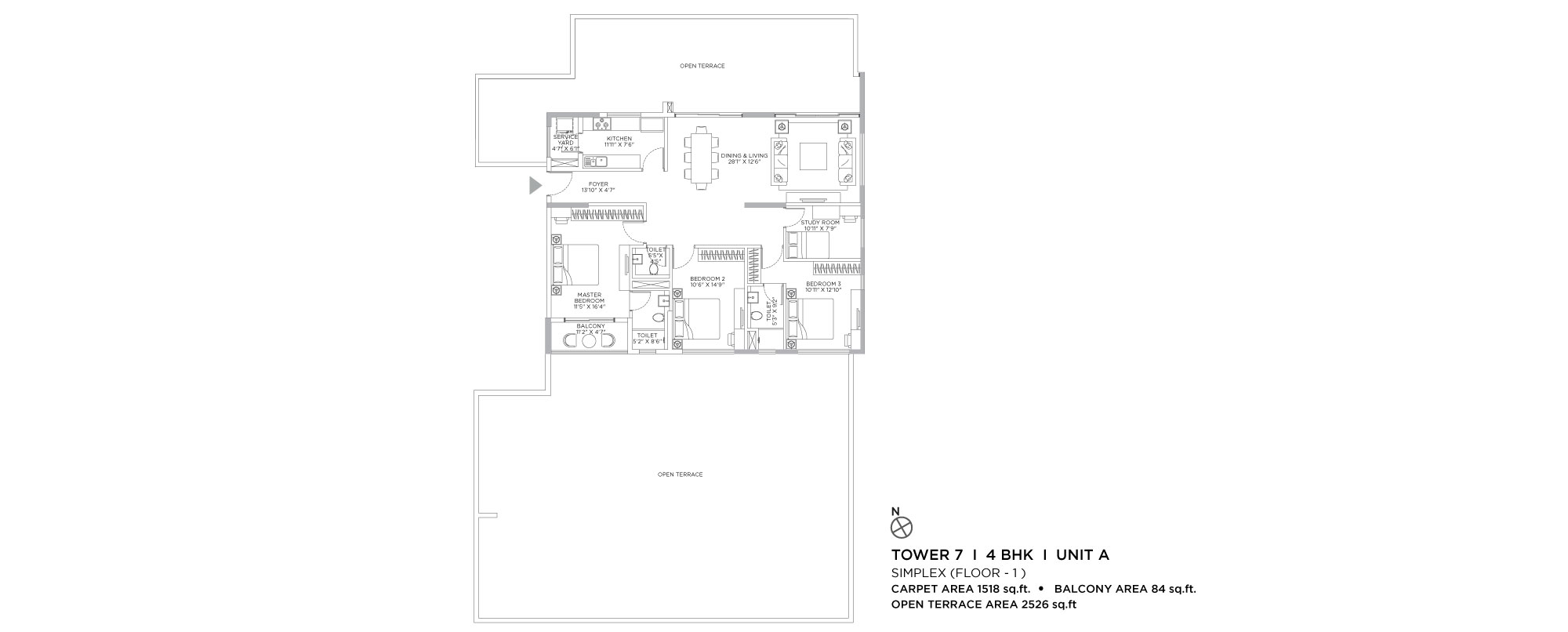
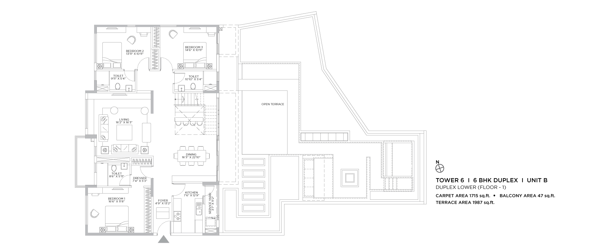
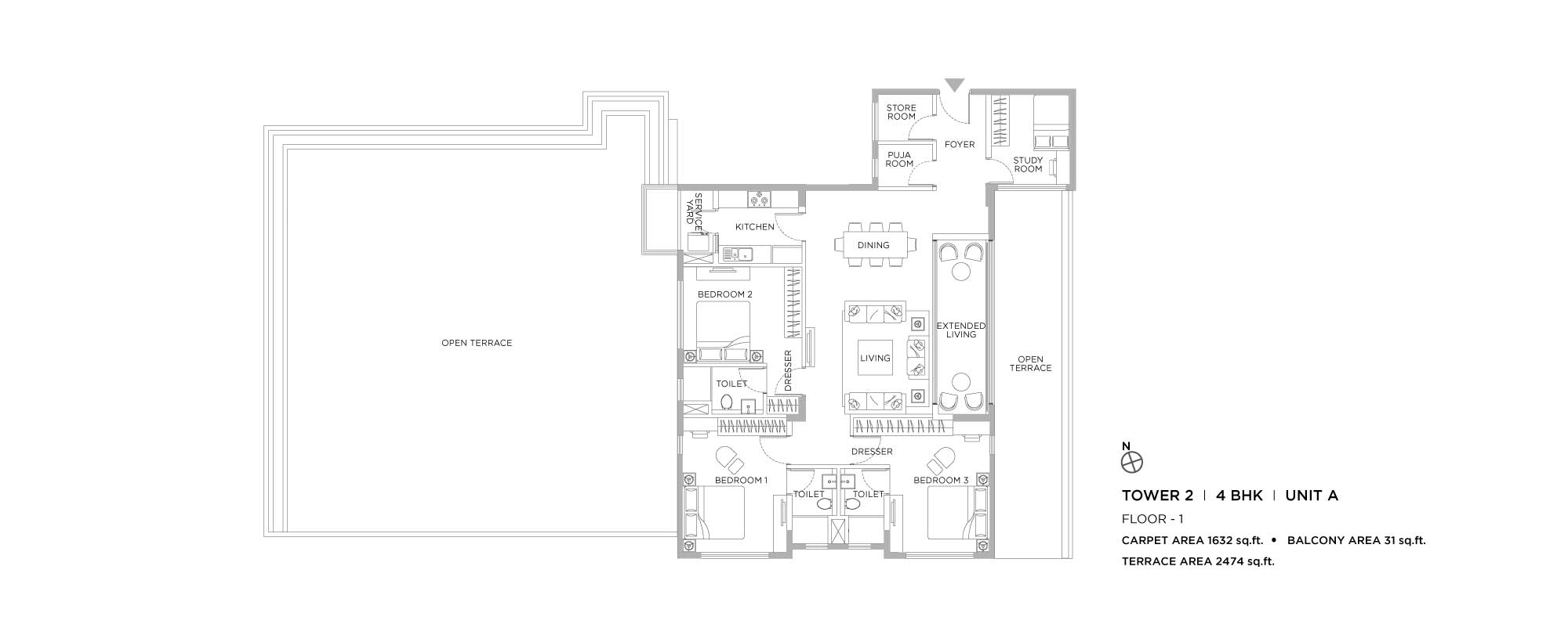
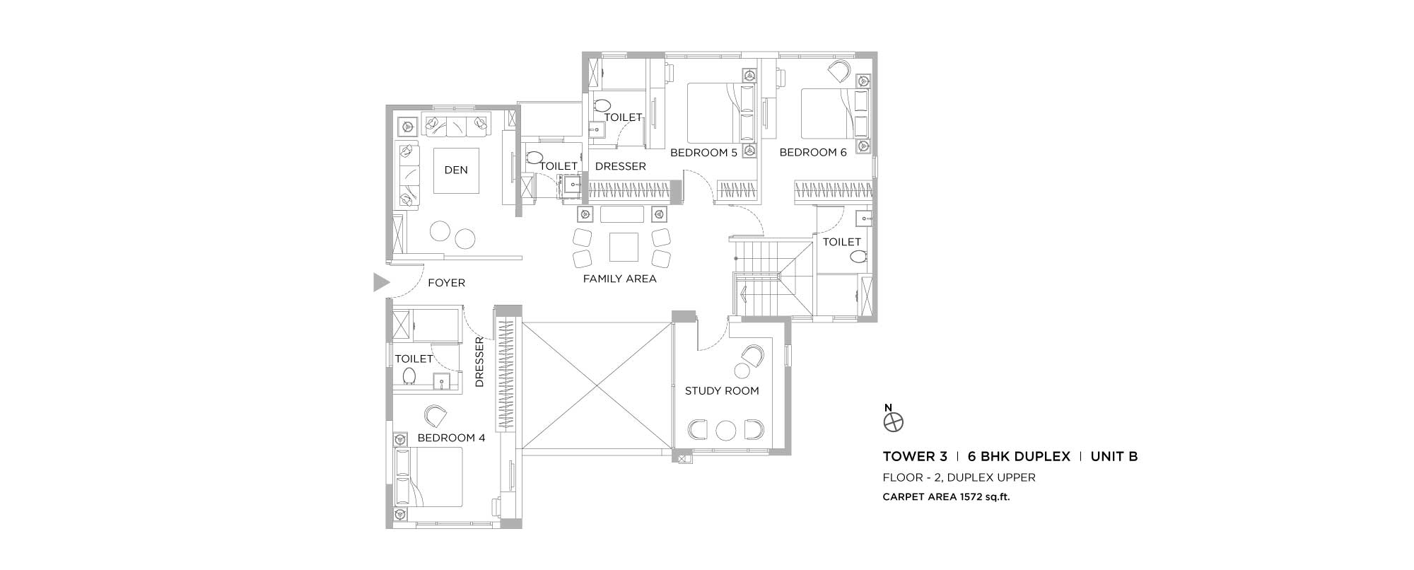
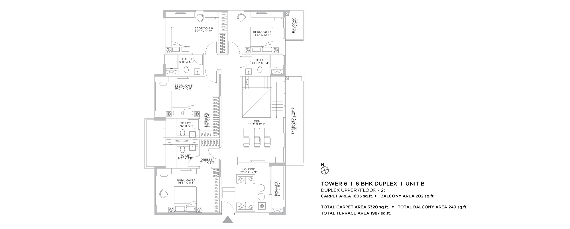
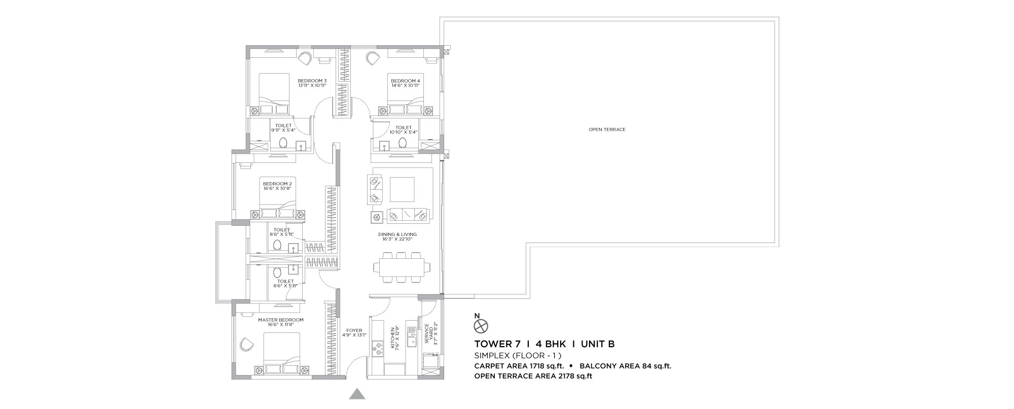
Extendable living room – a first in Kolkata. Exclusive garden homes. 4 BHK simplex and 4 BHK terrace & 6 BHK luxury duplex homes with 22 ft. tall living area, extra-large balconies, large kitchen, service yard and a separate room for your domestic help. Homes here are functional and flexible to nurture your passions. A getaway within the gates. 40,000 sqft. of seamless leisure, luxuries and athleisure amenities. Introducing the first ever sports arena with a separate sky turf in a residential project in Kolkata. Olympic length pool, exclusive health club, guest rooms, exclusive kids learning center and much more. Everything ever that brings together family and familytime.
Pricing (Inclusive of GST & extra charges)
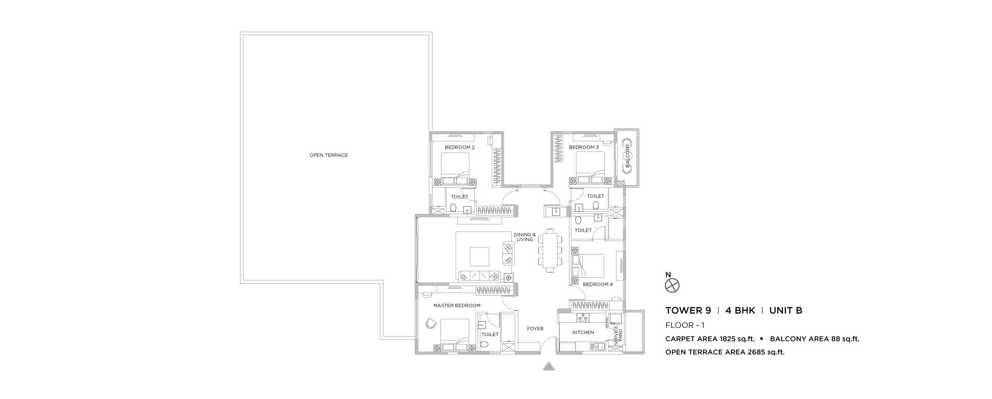
4BHK
3.54 Cr. Onwards
4BHK with Private Garden
5.86 Cr. Onwards
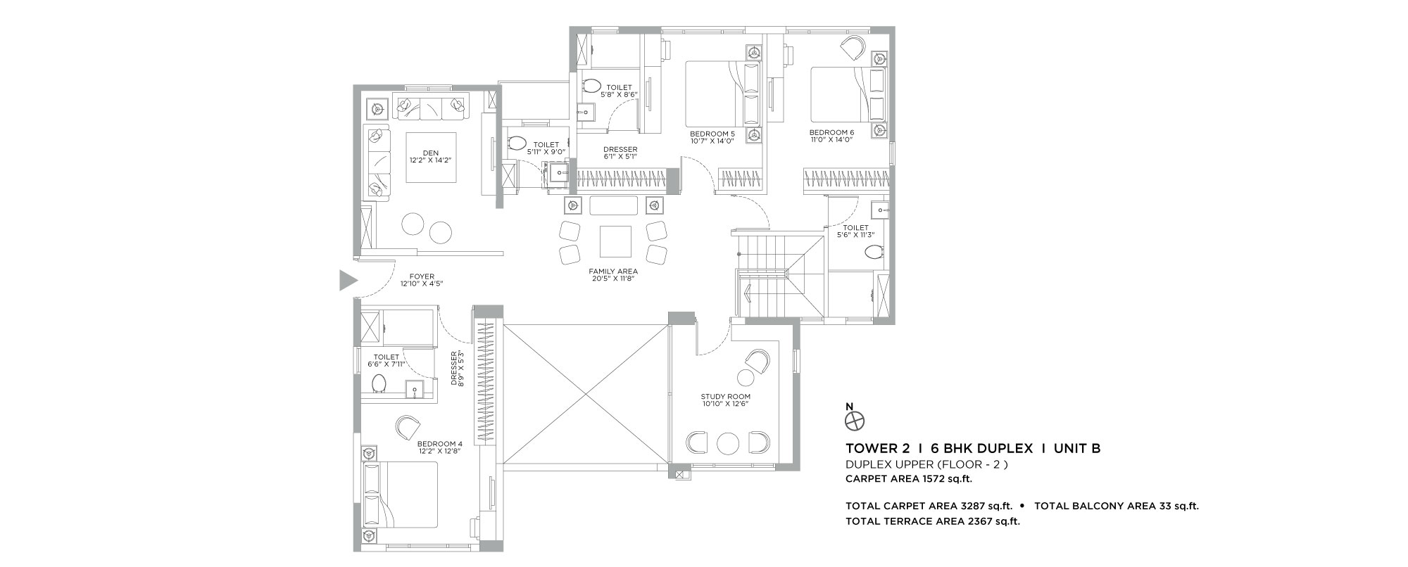
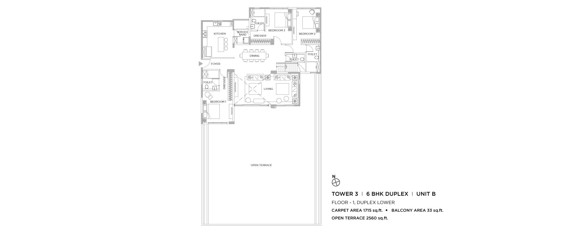
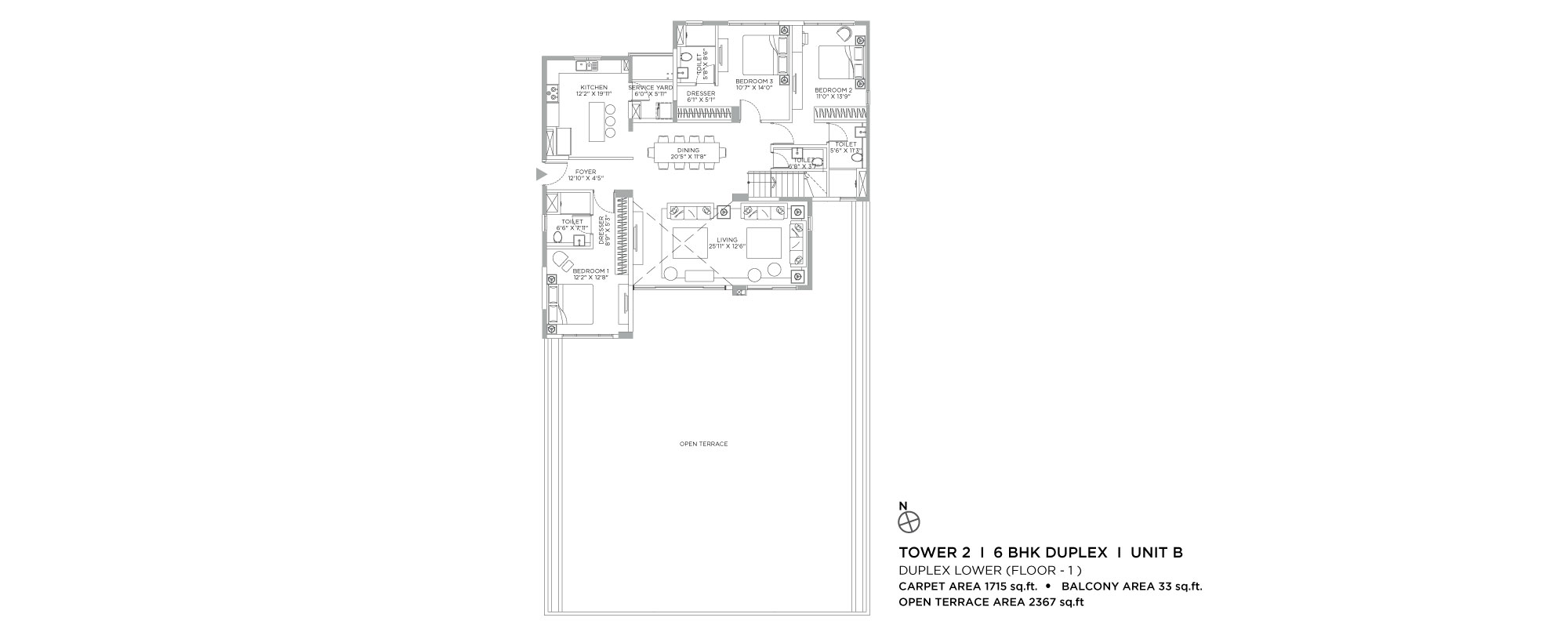
6BHK Duplex with Private Garden
8.82 Cr Onwards
Gallery
Luxury Apartments Images
Highlights
Luxury Apartment Offerings
Site Plan
Know Your Home
Location
New Alipore, South Kolkata
Navyom
Off New Alipore-
Healthcare
-
Education
-
Leisure
-
Commute

.png)