Overview
The perfect mix of urban life with nature. A perfectly balanced life. That’s what you’ll get at The Soul, Rajarhat. Every aspect of this project is thoughtfully designed so that your home has everything your family needs. Here quality construction, inspiring design, best-in-class amenities and nature’s bounty live in happy harmony. Come home to good living.
The Soul is thoughtfully planned and designed to satisfy your soul. It promotes well-being with lifestyle amenities that help build urban communities with stronger human connect.
Indeed it is a brilliant amalgamation of urban life with nature. With great views, enhanced ventilation and sunlight assured in every unit, The Soul improves the physical and psychological health of the inhabitants so much so that when you live at The Soul you live true – true to every wish of yours.
Pricing (Inclusive of GST & extra charges)
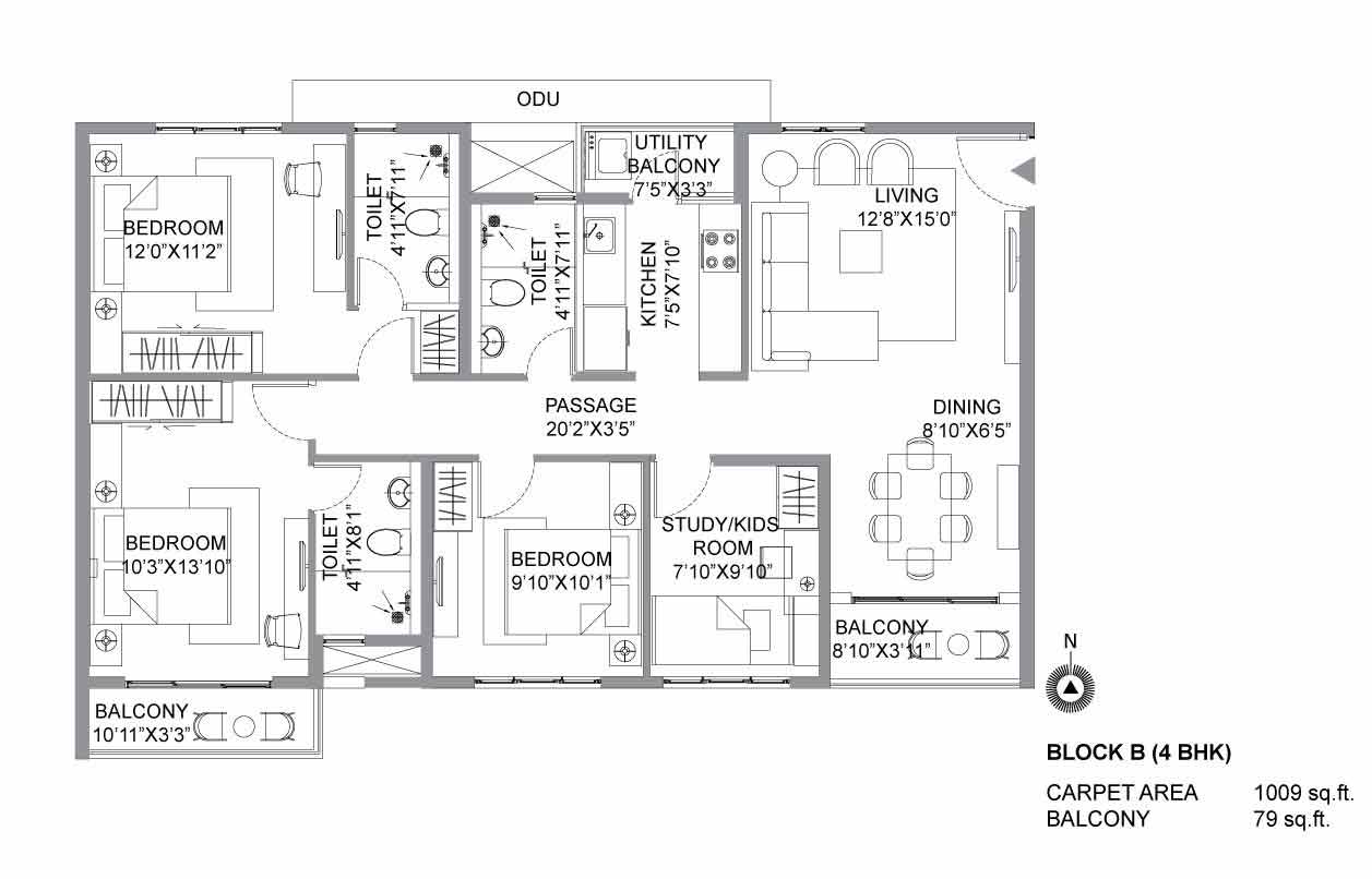
4BHK
Rs. 1.03 Cr to Rs. 1.04 Cr
Gallery
Residential Project Images
Highlights
Residential Apartment Features
Site Plan
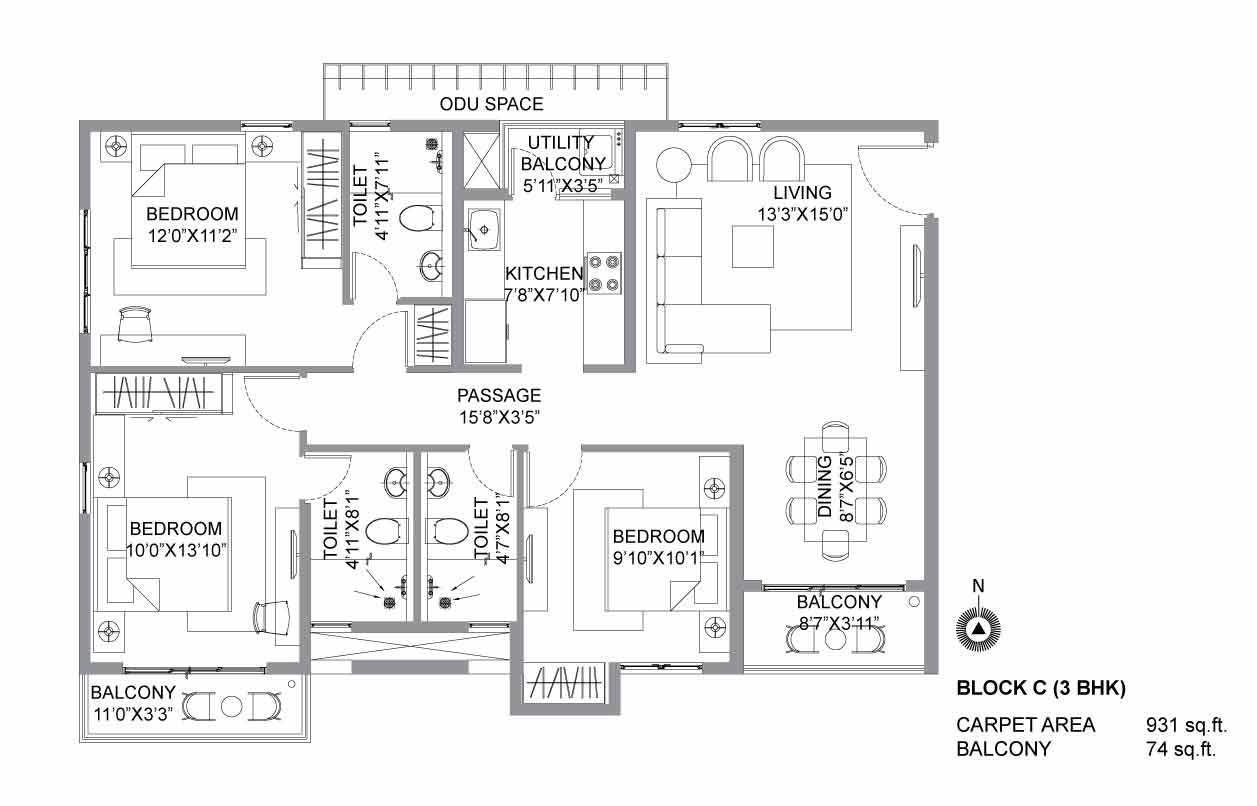
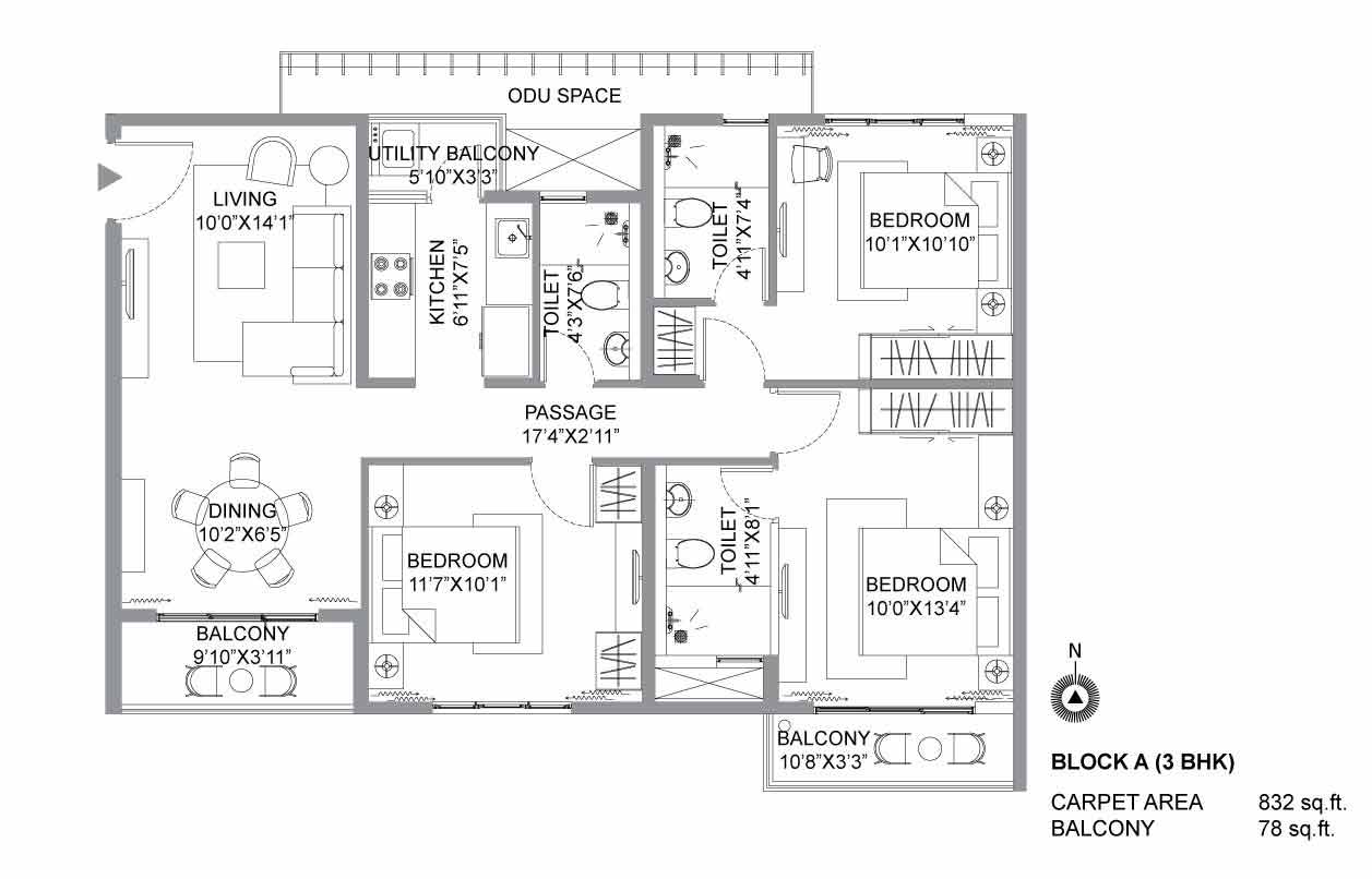
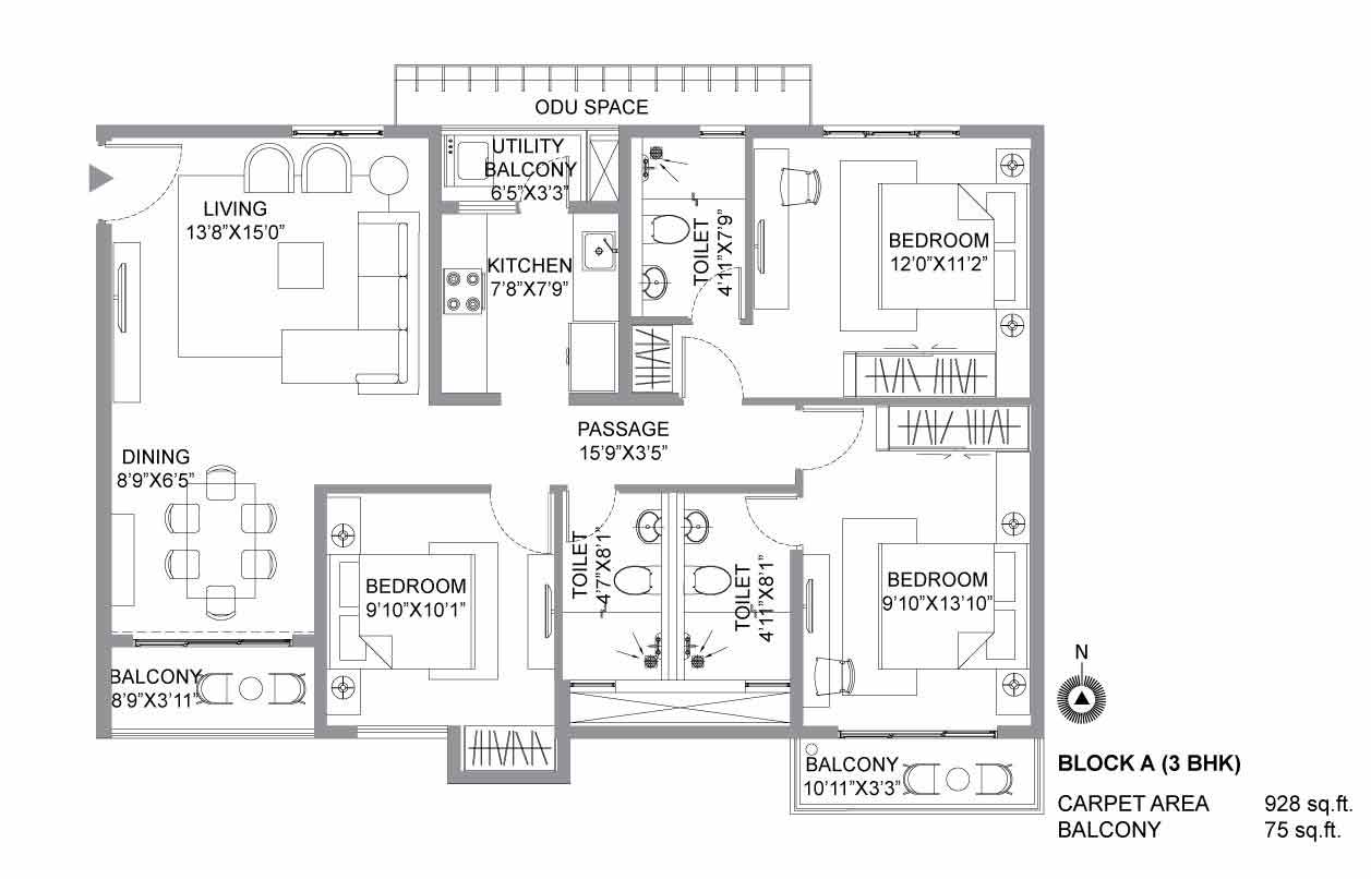
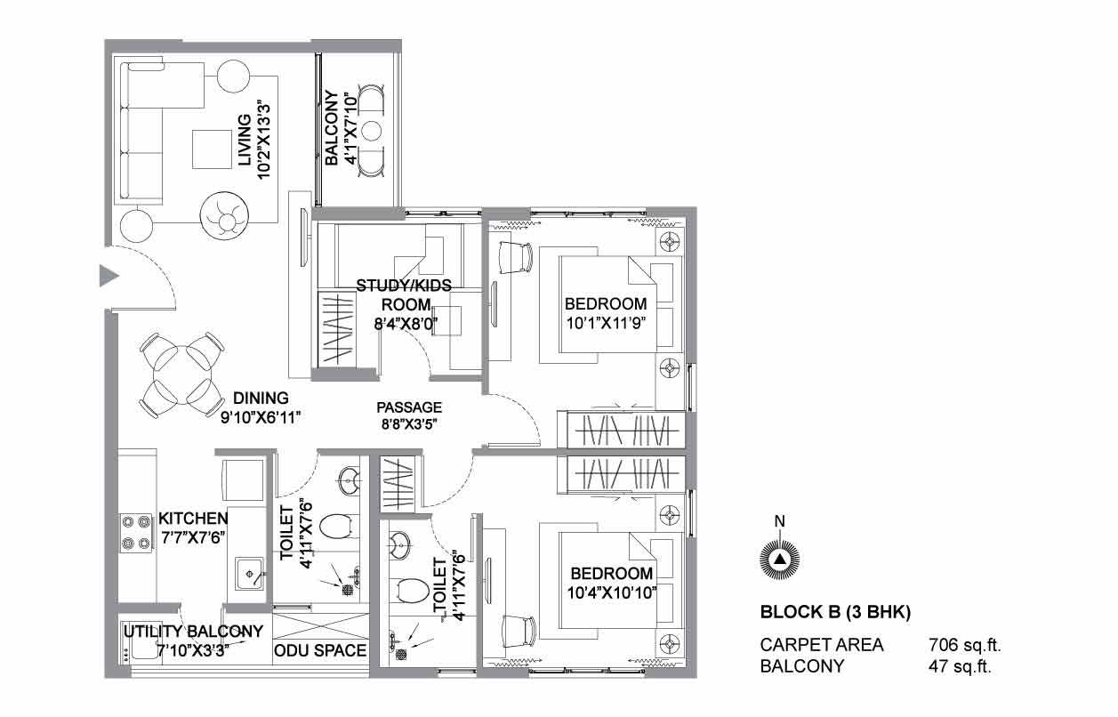
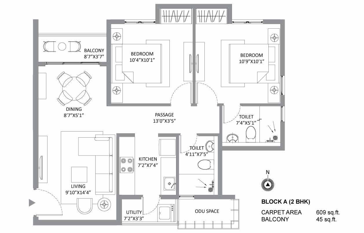
Know Your Home
Location
New Town, Action Area III
The Soul
Action Area III-
Healthcare
-
Education
-
Leisure
-
Commute

.png)