By
|
Getting your Trinity Audio player ready...
|
Congratulations! You have decided on building your dream 4 BHK Duplex in Kolkata. Now what? Purchasing your plot is not the end of the process. It is just the beginning. The next step is designing your 4 BHK duplex house plan. We asked a top architect at PS Group, one of the country’s most prominent real estate developers, the top factors to consider when choosing the perfect 4 BHK duplex flat design in Kolkata.
4 BHK Duplex house plan : Why is it so important?

Your home should be an extension of your personality. The 4 BHK duplex house plan will be made according to your family’s unique needs and lifestyle. You can decide which elements are important to you and include them in your house design. It is good to get a mockup or 3D floor plan of your house beforehand. The 4 bhk duplex house plan will help you picture the design before you spend your money.
6, 5, 4 BHK duplex house plan : Let’s look at some examples

A good plan must specify each and every detail of the home – including the electrical and plumbing outlets. This way you will see any potential problems before the work begins. Here are many unit plans for you to get inspired while freezing on your 6, 5, 4 BHK duplex house plan for your duplex flat in Kolkata.
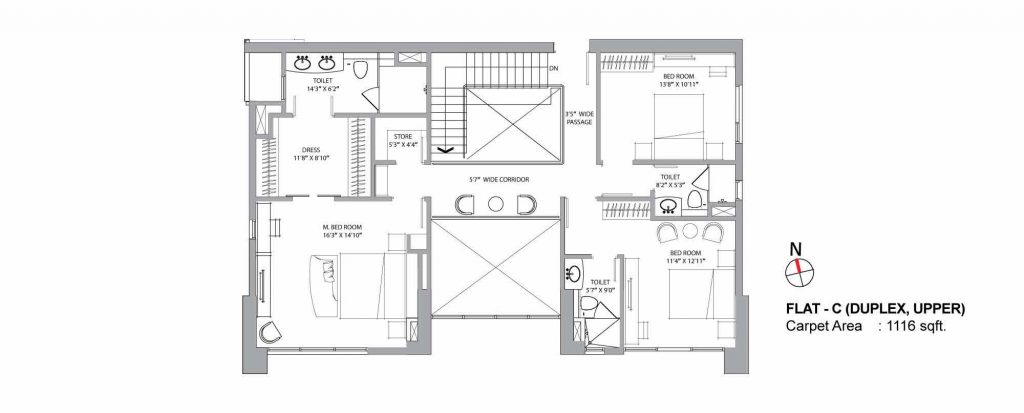
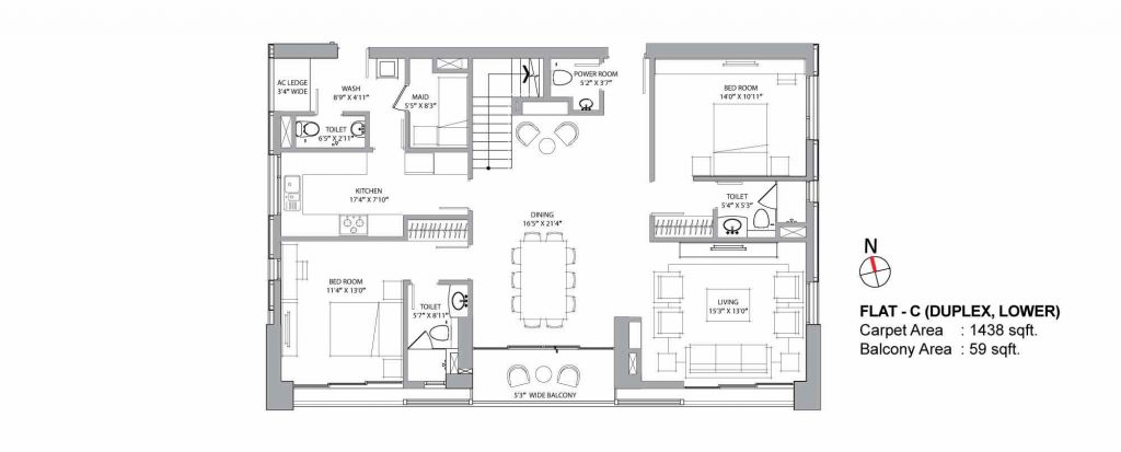
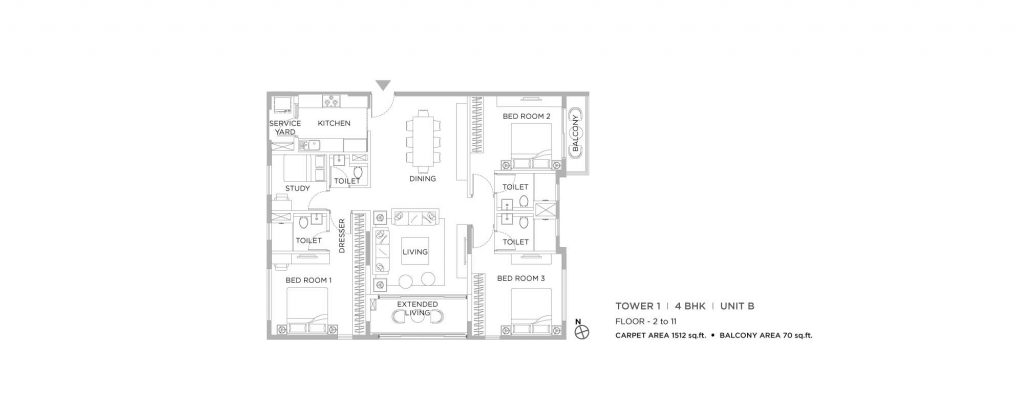
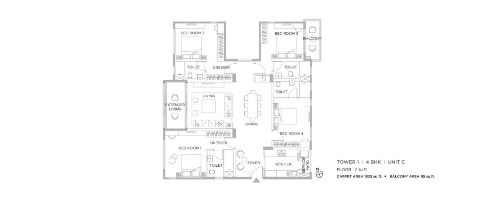
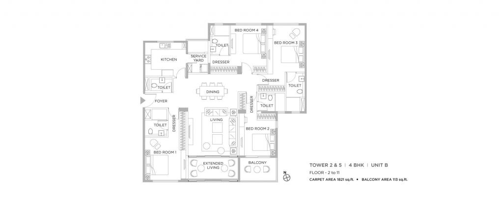
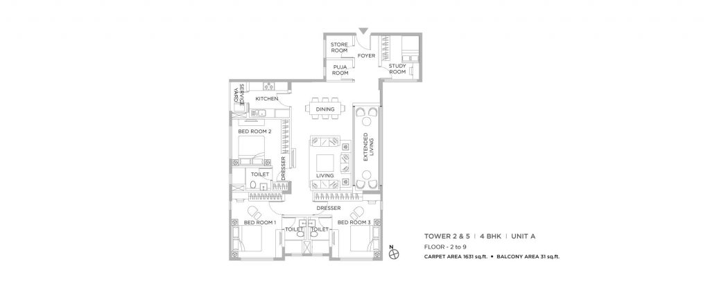
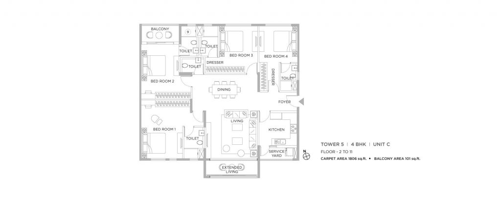
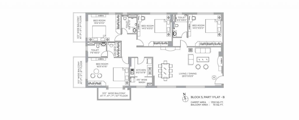
4 BHK duplex house plan at PS Aurus


Duplex flat design of PS Navyom





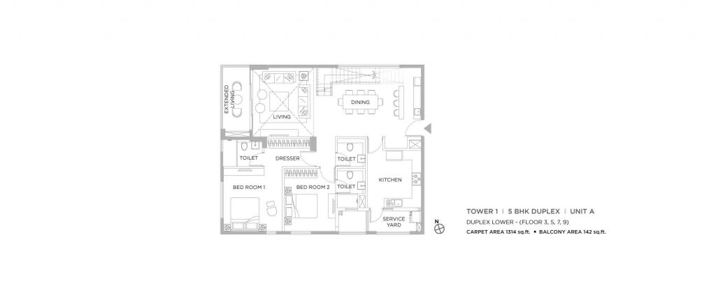
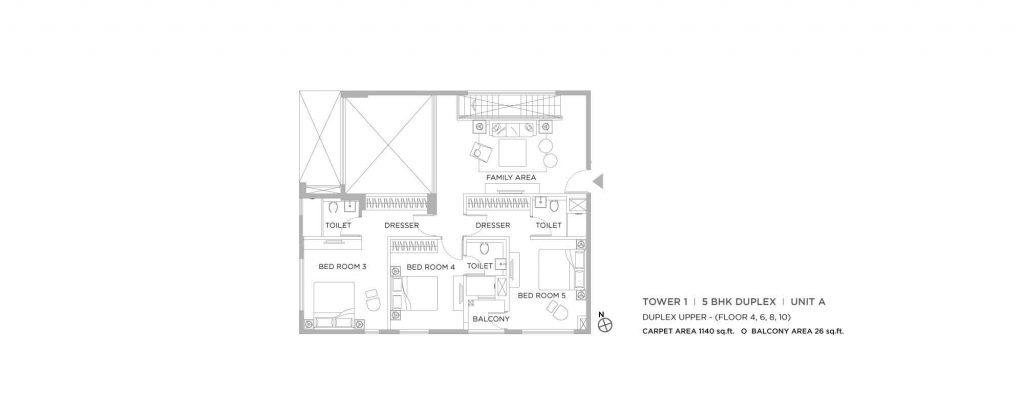
5 BHK duplex house plan : PS Navyom


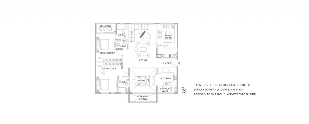
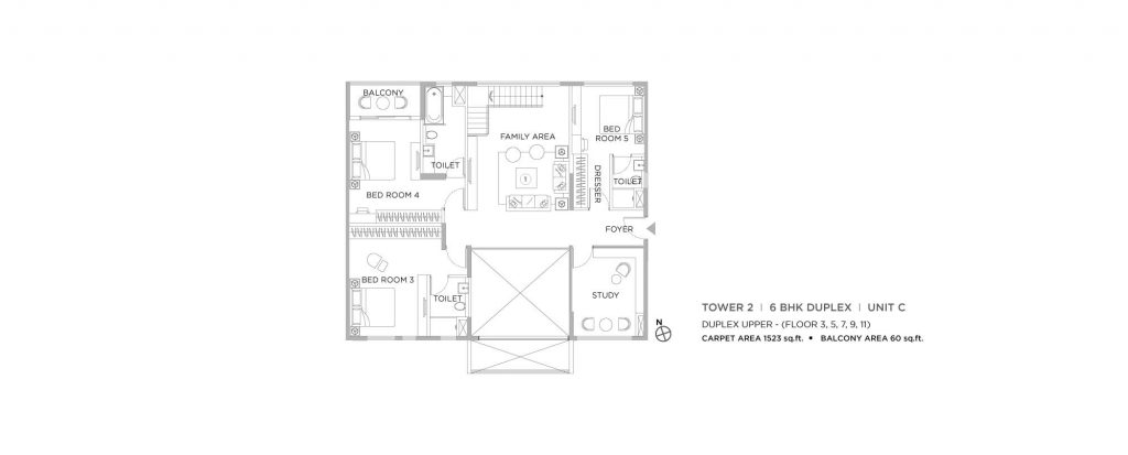
6 BHK duplex house plans : PS Navyom


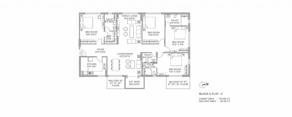
PS Jiva duplex flat design

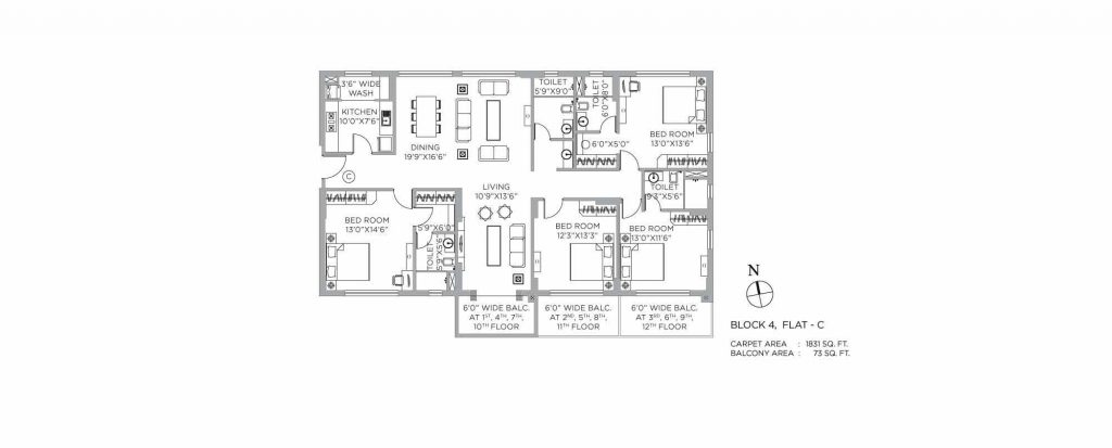
4 bhk duplex plan: PS Anassa duplex house plans






4 BHK plan and duplex flat design at PS The Soul

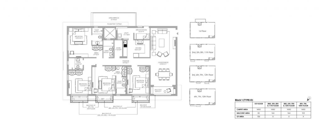
4 BHK plan: PS Vyom



Best 4bhk flats in Kolkata
4 BHK Duplex House Plan : Essential factors to consider

The most important factor that you will be playing around with in your 4 BHK duplex house plan is space. The amount of space designated to various rooms and activities will depend on how much space you have to begin with. A 3500 sq. ft. 4 BHK duplex in Kolkata will look very different from a 2500 sq. ft. one. For example, PS Aurus, which offers 4 BHK flat in EM bypass, has double-height ceilings, which will give you more space to design vertically.
Not only size, but the layout of the home also affects the duplex flat design of apartments. Sometimes while thinking about the design of our house, we neglect to think about doorways, drainage systems, stairs, walkway spaces etc. The shapes of the rooms and halls need to be carefully considered in your design.
- Decide on a budget
It is very important to decide your budget before you start the duplex flat design process. If you do not have a solid number in mind, it is easy to go overboard. Some compromises might have to be made between everything you want and the amount of money you can spend. It is best to avoid spending too much money on house design right at the beginning. You can always add things to the house later. Knowing beforehand which areas of the house are going to take more money, and which areas of the house you can afford to spend less on, will help you greatly.
- Give personal touches
Your ideal home should represent the kind of lifestyle you and your family have. After all, you want to be comfortable in your own home. Think about what activities your family members spend the most time on. And make sure to include enough space for each one to be able to pursue their hobbies. Do you entertain guests a lot? If so, make sure your living has enough space to accommodate your guests comfortably. Does someone in your family work from home?
You may want to convert one of your rooms into a home office. If you have children, you have to think about including enough areas for them to be able to play. If you always wanted to include an entertainment system in your flat to watch movies together, now is the time to make space for it. If someone in your family is a fitness enthusiast, they might want to convert one of the rooms into a home gym. If you have a live-in maid, she will need a room as well. Make sure in your 4 BHK duplex house plan, your unique needs are reflected.
- Privacy
There are a few more factors one should keep in mind while thinking about the house design of duplex apartments. One is privacy. Depending on how many members you have in your family, you will want to make sure each gets his or her own private space. Privacy is very important for people to get some time to themselves and have peace of mind. You do not want to keep running into each other around your home when you need space to work, study, work out or simply relax.
- Making space for elders in the family
If there are older people in your house, they might want to follow a schedule different from the other house members. In that case, you’ll have to make sure they have enough space that they don’t disturb the others. Teenagers also value privacy a lot more as they start growing up. Special attention will need to be given to everyone’s need for privacy while planning the layout for your upcoming duplex in Kolkata.
- Furniture
Before moving into your dream home, you would have already collected a lot of furniture in your previous houses. And most probably, you will not be disposing of everything and starting anew. So you must plan your 4 BHK duplex flat with your current furniture in it. Where will you place it and how much space will it take? This will also help you figure out how many new furniture pieces you require. Carefully draw out the measurements of your furniture in your 4 BHK duplex house plan 3d design, so you can see how much space is left around it. We would recommend always leaving 90 cm between furniture pieces so that one can walk around comfortably.
4BHK house plan : Incorporating the existing layout into the duplex flat design

A few points have to be considered when working with a readymade house. One is that your house design will have to incorporate the orientation of the house. If you are imagining the sun streaming into your perfectly decorated living room, but you have designated a part of the house for it where there is no natural light, then you will be disappointed.
Another example is the view. A large window looking out over a water body is interesting, but a window that has a view of another building is not something you want to draw the focus of your guests. Ventilation is also very important when deciding on your 4 BHK house plan. Some areas like the kitchen and bathrooms benefit from having cross ventilation and can get musty if there is no fresh air coming in. Balconies and windows can be designed in such a way that there is a cool breeze flowing through the house, and not just in a certain section of your duplex flat in Kolkata.
Some people like to incorporate elements of Vastu or Feng Shui in their homes. If that is the case, make sure to plan your house in that way from the beginning. This might mean changing the orientation of some rooms or changing the rooms altogether. These considerations should be included in your initial 4 BHK plan.
A few things most people don’t think about with duplex flat design

In my experience, most people think about the way they want to live today. But they fail to consider how they will live in the future.
You need to think about any future plans you have for your home. Will you be expanding your home in the future? Adding some duplex flat design elements at a later date? For example, do you picture a built-in bar or a kitchen island being added to your home at some point? Try to accommodate any future plans for your home into your current plan so that there is not too much inconvenience at a later date.
Also, consider the future maintenance costs of the home you are designing right now. How much upkeep will certain additions to your home require? Make sure that any such additions are within your budget today and will be so in the future as well. For example, a home theatre system that has wiring done inside the wall will be harder to fix later than a simple speaker setup.
Live luxuriously with the best duplex flat designs
No home design will be perfect from the beginning. But one can still try to accommodate all of their family’s needs and aspirations in their dream home. And adjust as time goes on. Keeping these points in mind will be very helpful when designing your 4 BHK duplex house plan. Your home design will be unique to you and suit your family’s needs, which is what will make it the perfect home for you. For more inspiration, do check out these two extensive guides on 4bhk flats and duplex flats.
Leave a comment